Loading...

appartamento in vendita

VIA COMMERCIALE, 156, TRIESTE TS

85.000 €

locali 3.0 locali
superficie 85 Mq
bagni 1 bagni
piano piano terra

Descrizione


SCORCOLA | VIA COMMERCIALE. In una delle zone più prestigiose e ricercate di Trieste, lungo l’elegante Via Commerciale, proponiamo un’interessante opportunità immobiliare dal grande potenziale.
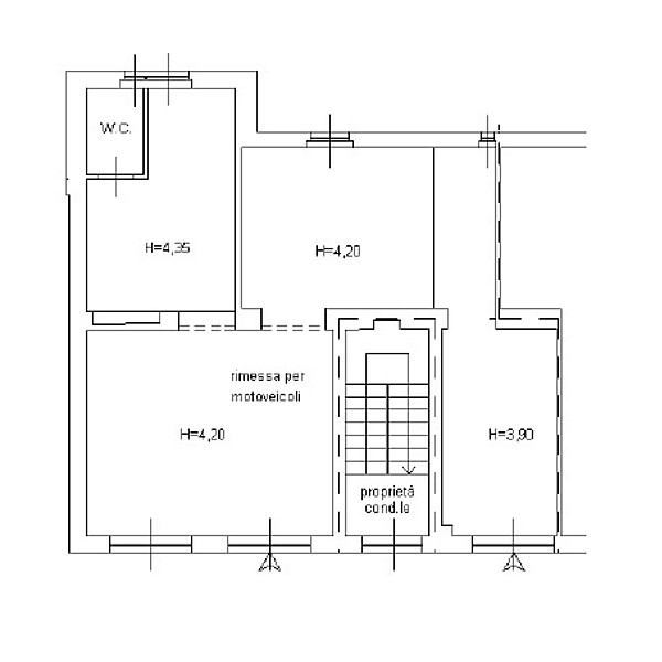
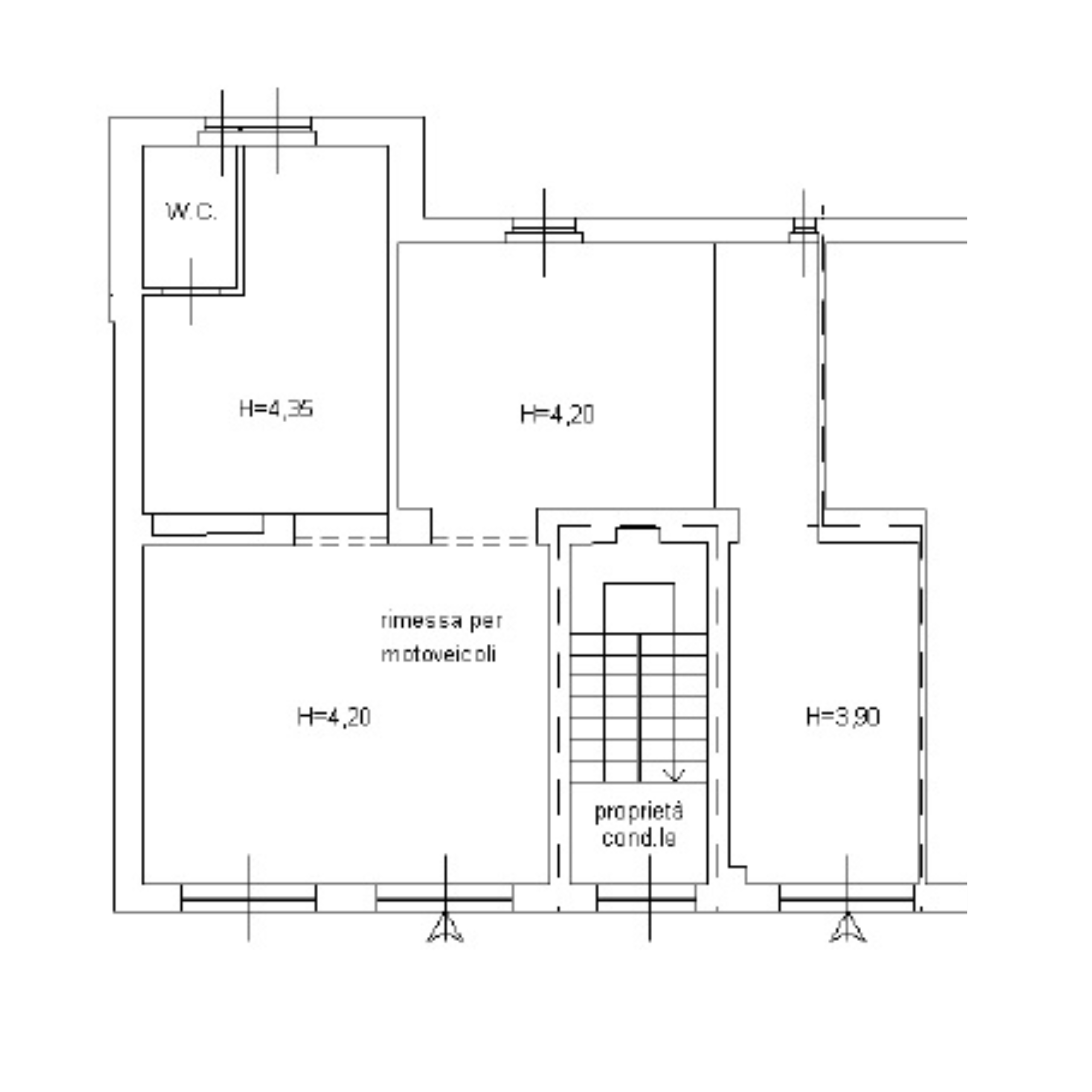
L’immobile, situato al piano terra, è attualmente accatastato e utilizzato come autorimessa per moto, ma si presta perfettamente a una trasformazione in uso abitativo. Con una superficie di circa 85 mq, oggi si sviluppa in quattro vani oltre a un bagno, con una distribuzione degli spazi che consente, con interventi contenuti, la realizzazione di un funzionale trilocale composto da soggiorno, cucina, camera matrimoniale e studio.

Punto di forza assoluto è la recente ristrutturazione: l’immobile dispone già di infissi nuovi in PVC e impianti certificati, elementi che permettono di completare la trasformazione con pochi ulteriori lavori di personalizzazione.
Dotato di riscaldamento autonomo con pompa di calore, rappresenta una soluzione moderna ed efficiente.
Perfetto sia come locale commerciale pronto all’uso, sia come progetto residenziale o investimento immobiliare in una delle aree più richieste della città.

Ottimo rapporto qualità/prezzo, ideale per chi cerca un immobile versatile e valorizzabile nel tempo.

nostra tutto mostra tutto mostra meno mostra meno

Costi


Prezzo 85.000 €
Spese condominiali 30

Caratteristiche


Tipologia
appartamento
Locali
3.0
Camere da letto
1
Condizionamento
Autonomo
Tipo di proprietà
intera proprietà
Contratto
vendita
Superficie
85 Mq
Piano
piano terra
Riscaldamento
Autonomo
Disponibilità
libero al rogito

Efficienza energetica


Stato manutenzione buono
Riscaldamento Autonomo , Pompa di calore, Ad aria

Foto


Mappa