Loading...

Bilocale con balcone e posto auto in Via Giulia

VIA GIULIA, 79, TRIESTE TS

164.000 €

locali 2.0 locali
superficie 60 Mq
bagni 1 bagni
piano 1° piano

Descrizione


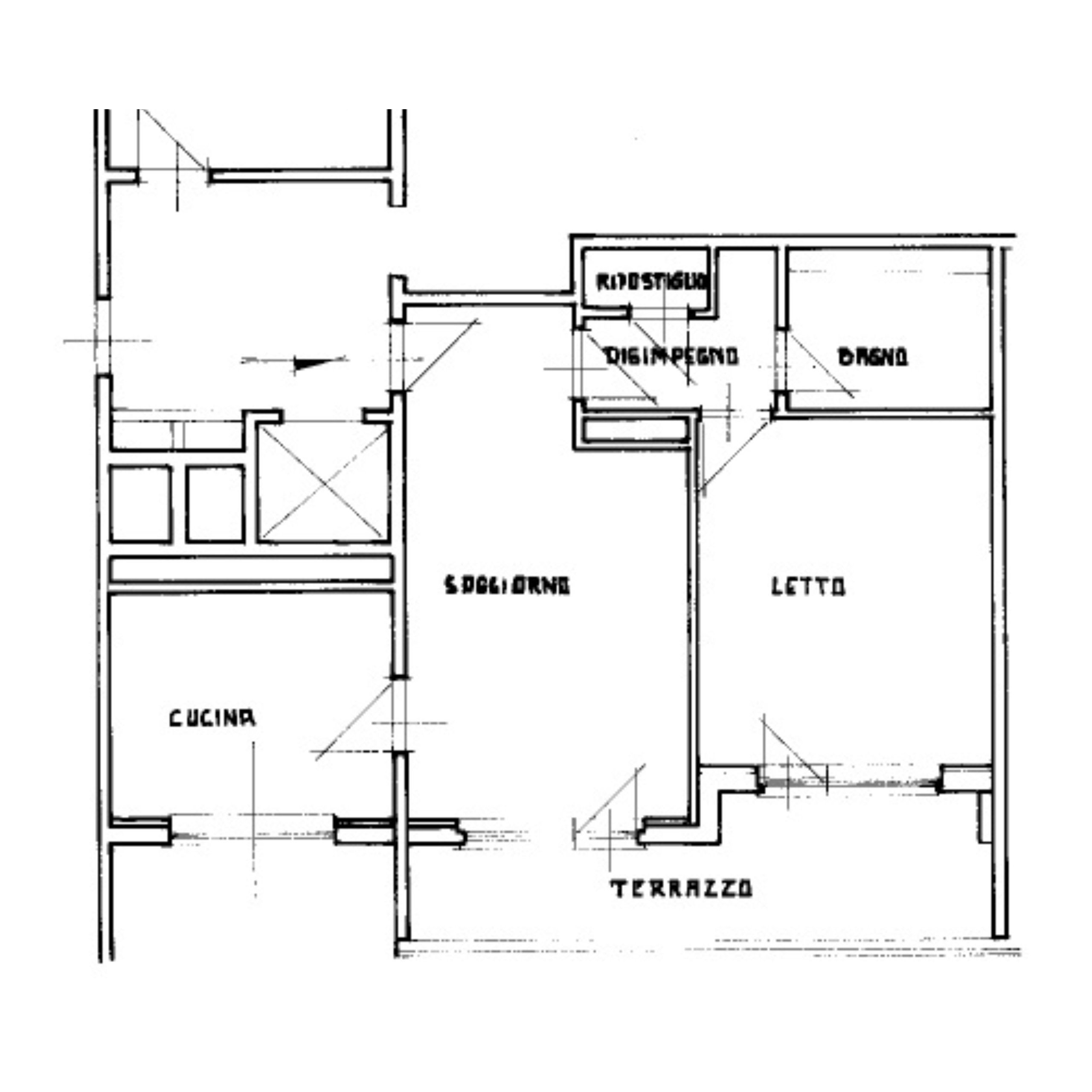
SAN GIOVANNNI | VIA GIULIA. In un complesso abitativo recentemente ristrutturato, alle spalle del centro commerciale "Il Giulia, proponiamo in vendita al primo piano un grazioso e ampio bilocale. L'appartamento si compone di ingresso, un comodo soggiorno e una camera matrimoniale ,entrambe con acceso al balcone, una moderna cucina abitabile, bagno completo e ripostiglio. L'appartamento completamente termoautonomo e fornito di impianto di condizionamento, si presenta in ottime condizioni, anche grazia alla recente ristrutturazione. La posizione, ideale per vicinanza ai servizi e mezzi pubblici, e distante pochi minuti dal centro, rende questa soluzione abitativa perfetta per chi cerca la comodità di un quartiere vivo e ben servito, senza rinunciare alla pace e ad una maggiore tranquillità, garantita dalla posizione defilata rispetto alle principali vie di scorrimento.

L'Immobile viene venduto insieme al suo posto auto sito all'interno dell'autorimessa e raggiungibile senza la necessità di uscire del condominio.

nostra tutto mostra tutto mostra meno mostra meno

Costi


Prezzo 164.000 €
Spese condominiali 30

Caratteristiche


Tipologia
appartamento
Locali
2.0
Box / Posto auto
1
Camere da letto
1
Condizionamento
Autonomo
Tipo di proprietà
intera proprietà
Contratto
vendita
Superficie
60 Mq
Piano
1° piano
Riscaldamento
Autonomo
Disponibilità
libero al rogito

Efficienza energetica


Stato manutenzione buono
Riscaldamento Autonomo , Metano

Foto


Planimetria


planimetria
next
prev

Mappa