Loading...

Luminoso trilocale da rimodernare con Box auto

VIA PAISIELLO, 6, TRIESTE TS

138.000 €

locali 3.0 locali
superficie 86 Mq
bagni 1 bagni
piano 4° piano

Descrizione


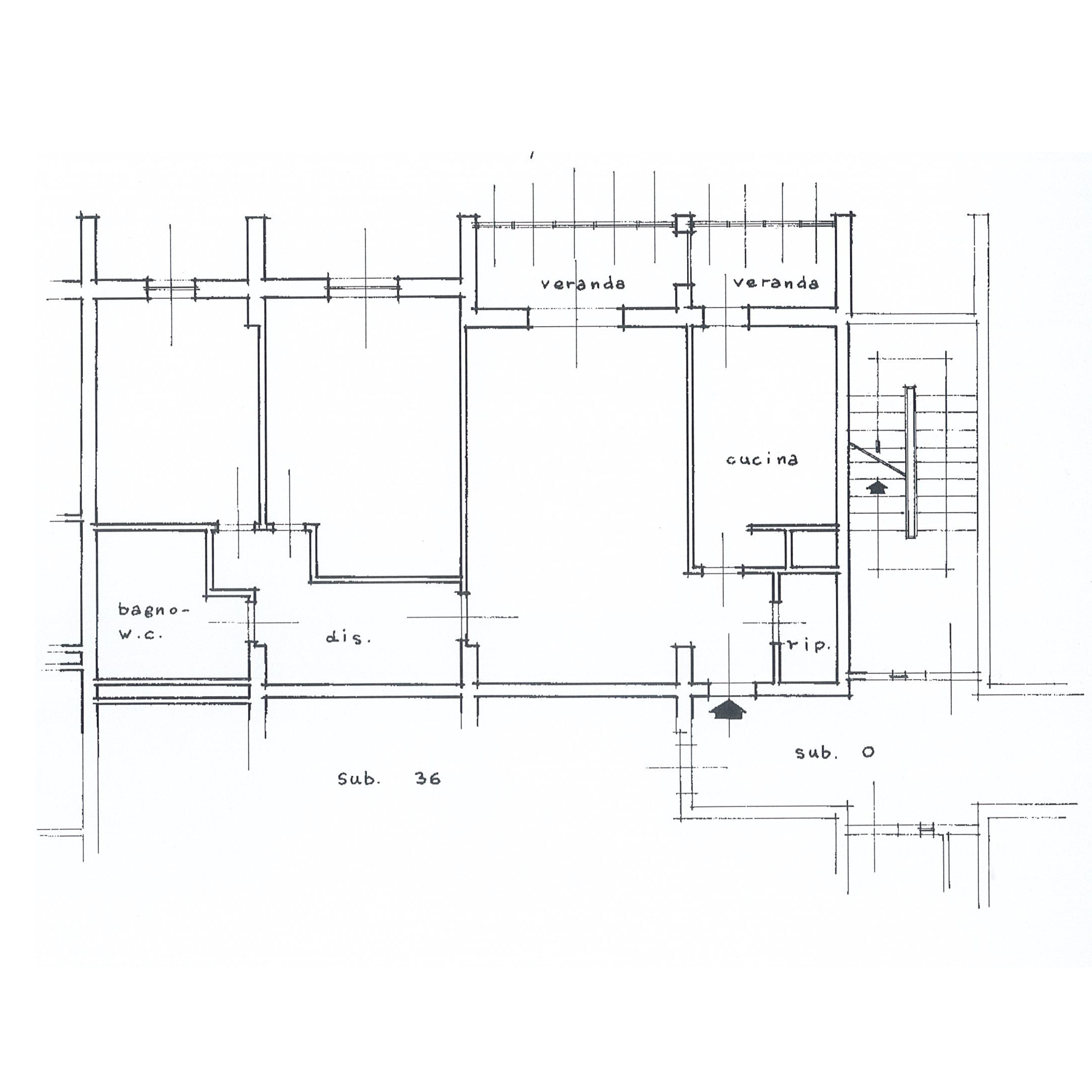
| VIA PAISIELLO. Al quarto piano di uno stabile degli anni 80 dotato di ascensore e privo di barriere architettoniche, proponiamo in vendita un' ampio trilocale da rimodernare. L'appartamento si compone di atrio, cucina semi-abitabile, un ampio soggiorno con accesso a una comoda e luminosa veranda, una camera matrimoniale, una camera singola, un bagno completo non finestrato e ripostiglio. La zona gode di tutte le comodità ma allo stesso tempo di grande quiete, perfetto per chi cerca una soluzione abitativa comoda e lontana dal centro cittadino, senza rinunciare ai principali servizi e un eccellente collegamento con il trasporto pubblico. L'appartamento è termoautonomo e le spese condominiali, che ammontano a 85 euro circa al mese, sono inclusive del consumo di acqua fredda centralizzata.

Possibilità di acquistare a parte un box auto in prossimità dello stabile di 12 mq, al prezzo di 25.000,00 euro

nostra tutto mostra tutto mostra meno mostra meno

Costi


Prezzo 138.000 €
Spese condominiali 85

Caratteristiche


Tipologia
appartamento
Locali
3.0
Box / Posto auto
1
Camere da letto
2
Tipo di proprietà
intera proprietà
Contratto
vendita
Superficie
86 Mq
Piano
4° piano
Riscaldamento
Autonomo
Disponibilità
libero al rogito

Efficienza energetica


Anno di costruzione 1980
Stato manutenzione da ristrutturare
Riscaldamento Autonomo , Metano, A radiatori

Foto


Planimetria


planimetria
next
prev

Mappa